Twelve Houses
Juryns motivering - Twelve Houses:
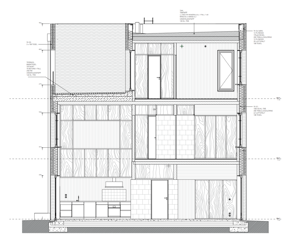
Ödmjukhet är det första ord som kommer upp. Till platsen, till miljön, till människan, till historia, till tegel och - till trä! Men kanske främst till uppgiften, genom att kombinera rollerna som arkitekt, byggherre och totalentreprenör har arkitekturen kunnat broderas fram till en lugn tegelarkitektur som kläds med människors liv och till en inre träarkitektur full av liv, värme, rumsligheter och in- och utblickar.

